BOOK BOXES begins with a quiet but consequential question: How should a learning space feel when a child approaches it? In many under-resourced contexts, educational buildings arrive as pure utility—functional, but emotionally indifferent. This proposal argues for a more respectful standard: an environment that is economical and fast to deploy, yet also welcoming, memorable, and dignified.
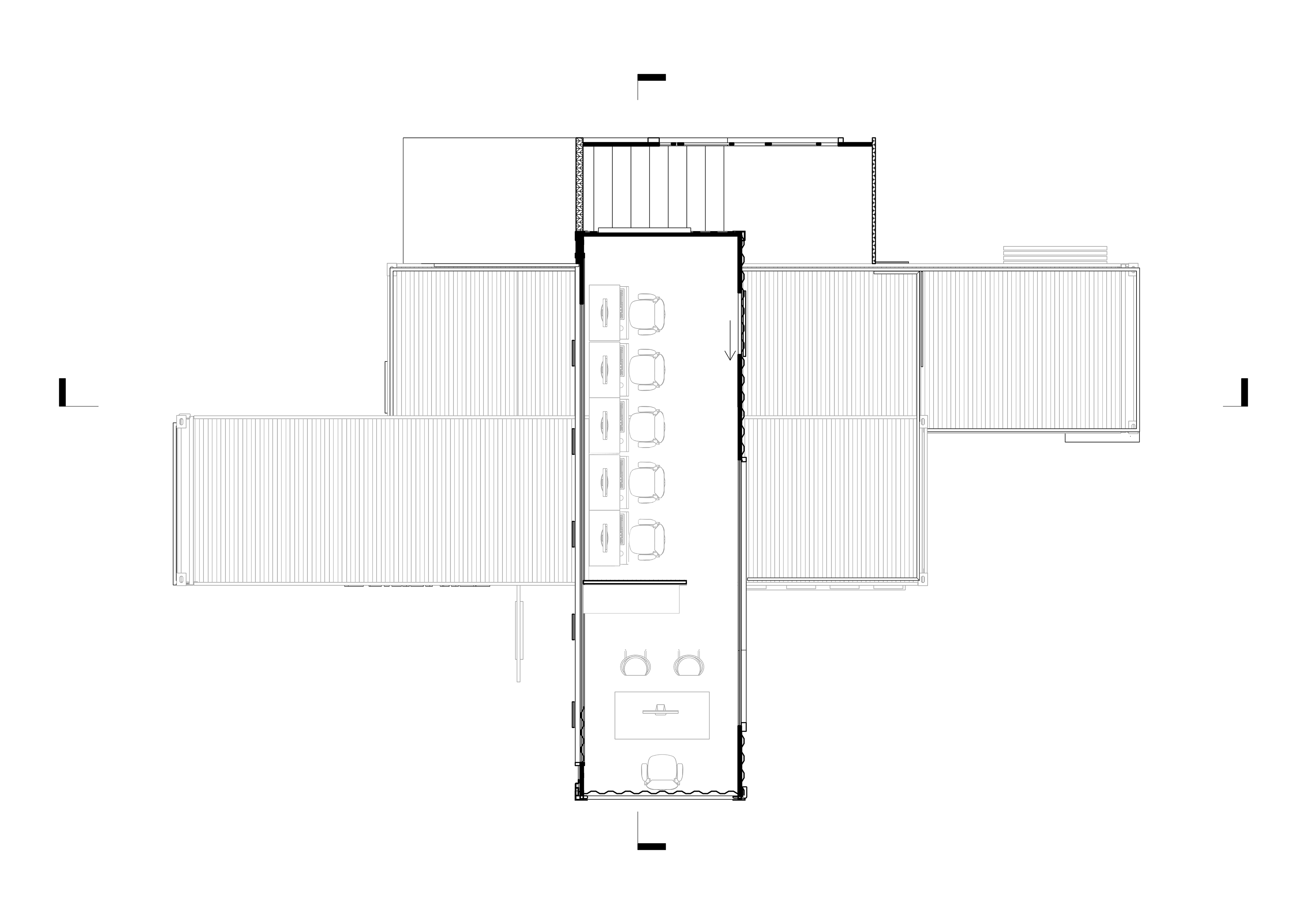
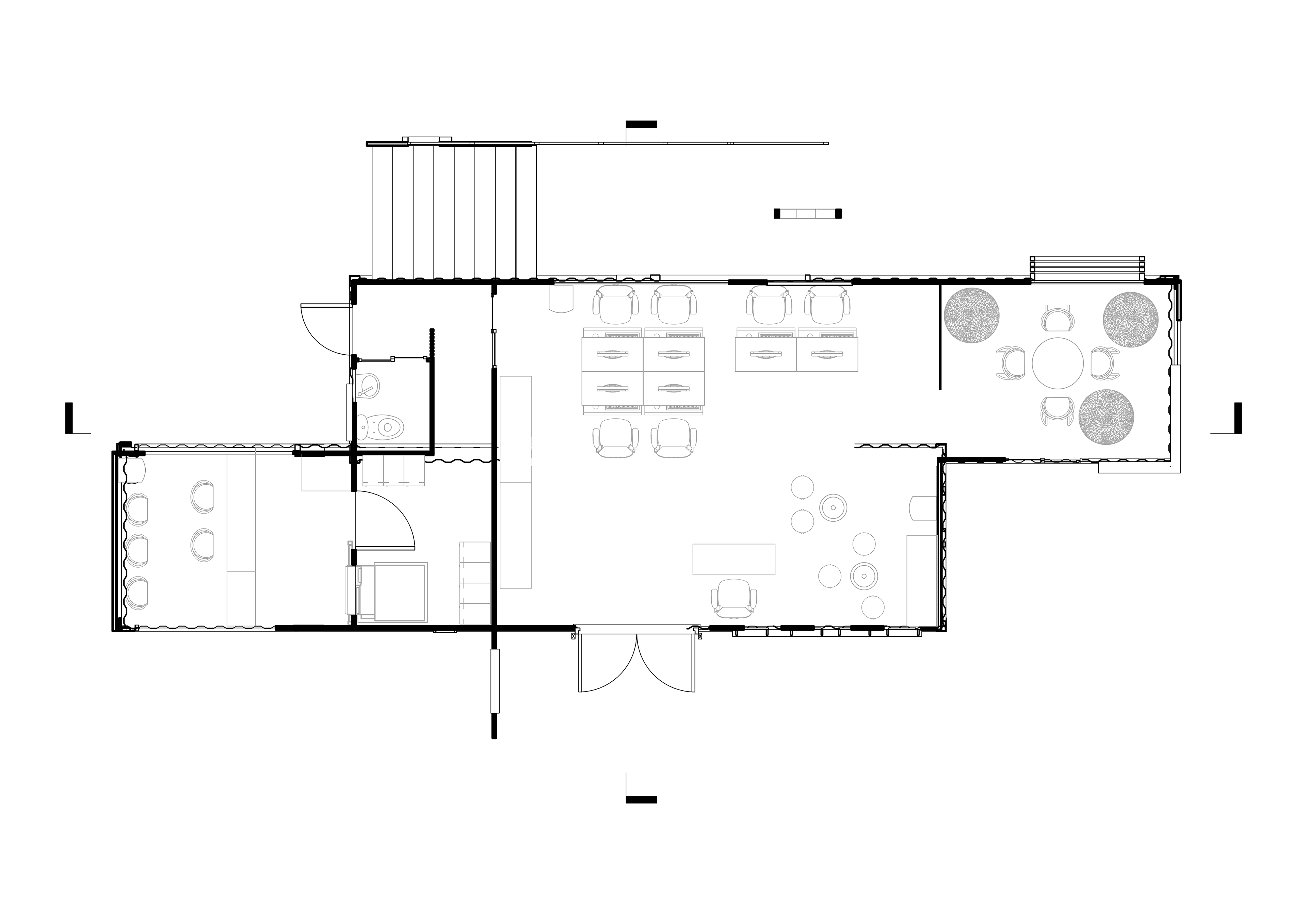
The project repurposes four donated shipping containers into a compact campus for reading, research, and student support spaces at Kentinkrono JHS, Kumasi. Containers are treated not as finished rooms, but as structural assets—robust, modular, and immediately available—around which comfort and identity must be designed. The real design challenge is not only space-making; it is climate-making: in Kumasi, heat and glare can quickly undermine concentration and wellbeing.
Formally, the massing adopts a stacked, block-like composition reminiscent of LEGO and Jenga. The intention is legibility. Children read the building as something made for them—clear, playful, and non-threatening—while the arrangement performs serious work: it creates shaded thresholds, a small outdoor circulation spine, and a sequence of in-between spaces where learning can expand beyond the container walls.
Passive comfort is embedded through straightforward logic: reduce direct solar exposure on the steel skin, allow cross-ventilation through controlled openings, and introduce a secondary shading layer—canopies/pergolas and planted edges—that softens the microclimate and turns arrival into a cooler, calmer experience. The design remains disciplined about maintenance and realism: simple additions, durable finishes, and an approach that can be adapted as resources change.
As second lead, I contributed research, 3D modelling, visualization, illustration, and copywriting—helping to articulate the project’s intent, communicate its environmental logic, and present the architecture as both a practical prototype and a promise: that education deserves spaces built with care.
Comfort Strategy for Containers
Solar protection first: A lightweight secondary roof / canopy layer keeps direct sun off the steel skin, lowering heat gain and making the outdoor “learning street” usable throughout the day.
Ventilation as default: Cross-ventilation is established with openings on opposing faces, supported by high-level vents to purge hot air and keep interior air fresh during peak heat.
Daylight without glare: Openings are sized and positioned to bring in soft, readable daylight while limiting harsh glare—supporting concentration and visual comfort.
Thermal moderation: Where interior comfort needs reinforcement, the container envelope is upgraded with targeted insulation and an internal lining that reduces radiant heat from the metal shell.
Microclimate by landscape: Planted edges and shaded thresholds cool the approach, filter dust, and create a calmer, healthier outdoor learning environment with minimal maintenance burden.

You may also like

Back to Top